
設計風格:經典美式?
常住人口:5人?
住宅面積:356m2(全屋面積)?
設計門店:江蘇連云港名匠裝飾,別墅裝修公司
設計理念:當浮華散盡,唯生活才是永恒。本案在美式風格的基礎上,摒棄了繁瑣,繁重的格調,保留了材質、色彩上經典華貴的氣質,但又在裝飾的基礎上簡化了線條、肌理感和裝飾。

連云港301平米以上別墅美式風格裝修效果圖
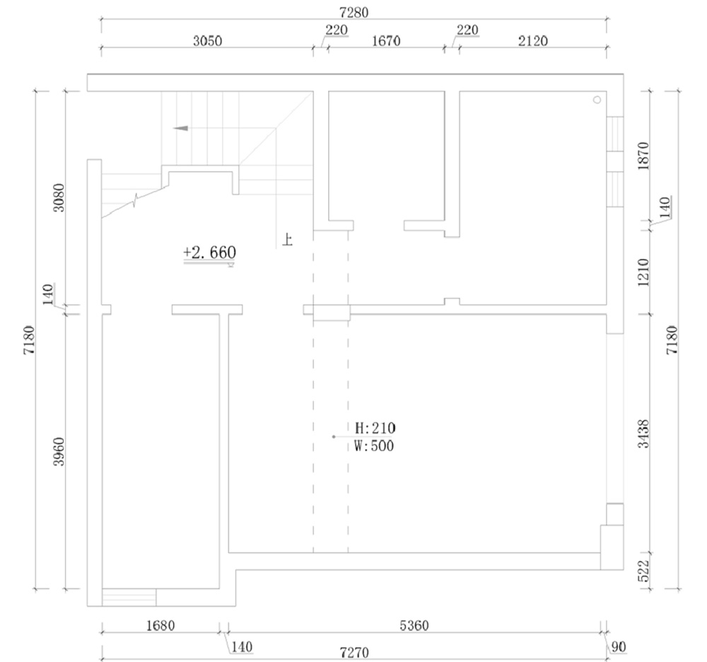
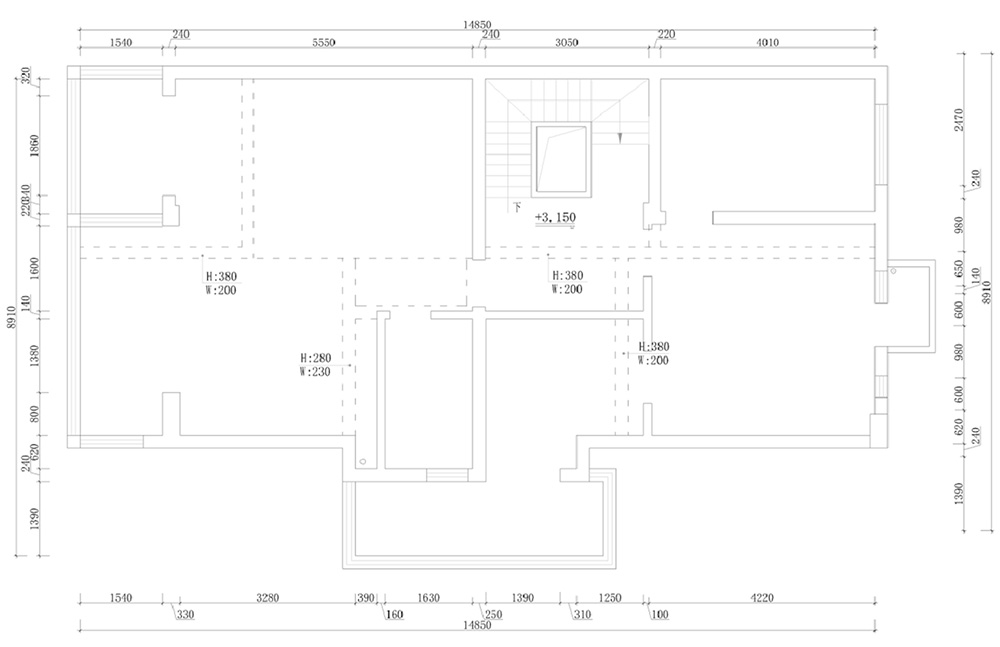
▲ ?地下室平面圖

連云港301平米以上別墅美式風格裝修效果圖
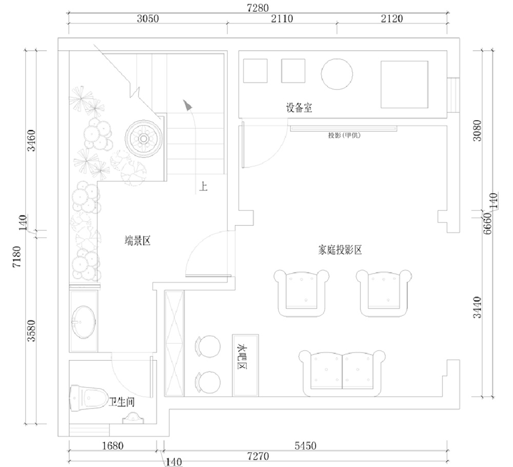
▲ ?地下室布局圖

連云港301平米以上別墅美式風格裝修效果圖
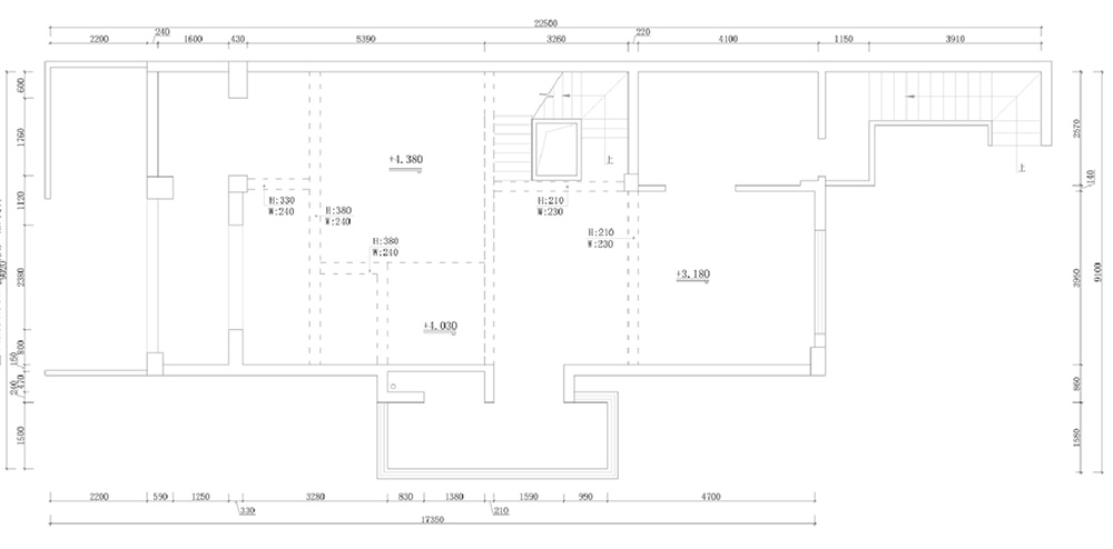
▲? 首層平面圖

連云港301平米以上別墅美式風格裝修效果圖
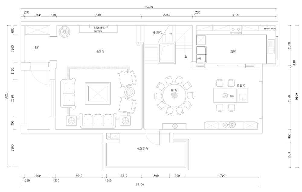
▲? 首層布局圖
別墅客廳裝修,走過獨立的玄關區域,就被富麗堂皇的客廳氛圍所感染,大理石地面修飾著經典的美式風格圖案,優美之中散發著高貴的氣息,而兩側的背景墻同樣采用了大理石石材,在燈光的映襯下散發著華麗的身姿。

連云港301平米以上別墅美式風格裝修效果圖
別墅客廳裝修,過于富麗堂皇的設計會給人一種高高在上的感覺,缺少了生活的滋味,因此在家具的選擇上,沿襲了美式傳統的深色木制家具,配以淡雅色調的沙發,在沉穩深邃之中隱隱約約顯露著素雅溫馨,讓家更有生活的氣息。

連云港301平米以上別墅美式風格裝修效果圖
別墅客廳裝修,美式經典的鐵藝枝燈,為客廳帶來了磅礴之感,顯露著恢弘大氣,氣派十足。

連云港301平米以上別墅美式風格裝修效果圖
別墅餐廳裝修,將大理石裝飾延續至餐廳,不僅保證了全屋風格的統一性,也是延續了美式風格所帶來的經典華麗氣質,隨時讓時尚停留在身邊。

連云港301平米以上別墅美式風格裝修效果圖
別墅吧臺裝修,餐廳身處是簡餐區,大理石臺面搭配敦厚的實木主題,尊貴氣質油然而生,而另一側則專屬定制了一套餐邊柜,用于收納日常所需,保證了餐廳的干凈整潔,營造出更加舒適的就餐環境。

連云港301平米以上別墅美式風格裝修效果圖
別墅餐廳裝修,簡約又不失情調的水晶吊燈,搭配著異形造型天花,不僅展現出匠人的精湛技藝,更是為客廳帶來了優美高雅的就餐氛圍。

連云港301平米以上別墅美式風格裝修效果圖
別墅吧臺酒柜

連云港301平米以上別墅美式風格裝修效果圖
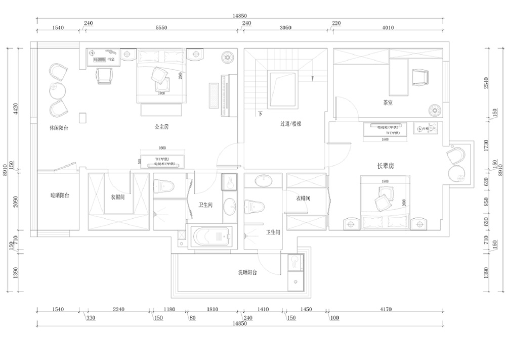
▲? 二層平面圖

連云港301平米以上別墅美式風格裝修效果圖
▲? 二層布局圖
別墅公主房裝修,所有房間都在原有戶型結構基礎上,做了改造規劃,使得每個臥室都有自己獨立的衣帽間和衛生間,保證了家人生活的便利性,好設計,就是為了給家人提供更便利的生活方式。

連云港301平米以上別墅美式風格裝修效果圖
別墅公主房裝修,高級灰與翡翠綠的組合,不僅是一種時尚的色彩搭配,加之整體室內布局及家具選擇的簡美風,給人一種時尚環繞身邊的感覺。

連云港301平米以上別墅美式風格裝修效果圖
而臥室選擇了實木地板裝飾地面,沉穩自然的原木色,為室內增加了自然的溫度,中和了灰色的冷淡,維持了家的溫馨氣息。

連云港301平米以上別墅美式風格裝修效果圖
時尚優雅的異形造型天花設計,使得公主房空間更具有層次感,簡練的線條和順暢的弧線,營造出更具有內斂、氣派的空間氣質。

連云港301平米以上別墅美式風格裝修效果圖
別墅次臥裝修,老人房的整體格調更加素雅溫馨,這樣的環境氛圍可以為父母營造更加舒適的休息空間,而且更符合家里老人喜歡的低調、不張揚的風格基調。

連云港301平米以上別墅美式風格裝修效果圖
別墅次臥裝修,天花的造型設計也頗有藝術美感,溫潤的弧面加上排列整齊的線條,令空間氛圍簡約時尚之中彰顯著溫馨優雅氣質。

連云港301平米以上別墅美式風格裝修效果圖
別墅次臥老人房

連云港301平米以上別墅美式風格裝修效果圖
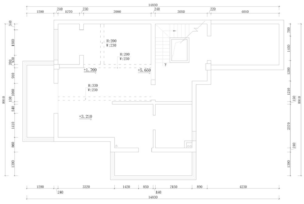
▲? 三層平面圖

連云港301平米以上別墅美式風格裝修效果圖
▲? 三層布局圖
別墅主臥裝修,主臥室以高級灰為主的護墻搭配質感細膩的墻布,給人以時尚有不失穩重的居住空間。每個臥室也都設有獨立的洗曬區及休閑區,讓每個家庭成員的都擁有獨立私密的活動空間。

連云港301平米以上別墅美式風格裝修效果圖
別墅主臥裝修,主臥的天花造型設計也更加優美典雅,仿佛飄浮空中的花瓣,營造出一片溫暖浪漫的天地。

連云港301平米以上別墅美式風格裝修效果圖
室內更無過多的裝飾物品,整體氛圍顯得格外清爽溫馨,實木地板更是為空間帶來自然溫暖的舒適感覺。

連云港301平米以上別墅美式風格裝修效果圖

連云港301平米以上別墅美式風格裝修效果圖
設計師巧妙規劃,將冰冷的建筑轉變為更富有人情味的華貴族氣質空間,邂逅更美好的溫馨生活。
紅河哈尼族彝族自治州101-200平米美式風格俊峰花園裝修設計案例
美式風格101-200平米三居室
臺州101-200平米美式風格美景和府家裝設計案例
美式風格101-200平米四居室
文山壯族苗族自治州101-200平米美式風格中天名郡家裝設計案例
美式風格101-200平米三居室
嘉興101-200平米美式風格東林苑裝修設計案例
美式風格101-200平米四居室
紅河哈尼族彝族自治州101-200平米美式風格驪都國際家裝設計效果圖
美式風格101-200平米三居室
廣州101-200平米美式風格家裝設計案例
美式風格101-200平米復式
廣州101-200平米美式風格室內設計效果圖
美式風格101-200平米三居室
衢州301平米以上美式風格家裝設計效果圖
美式風格301平米以上別墅