
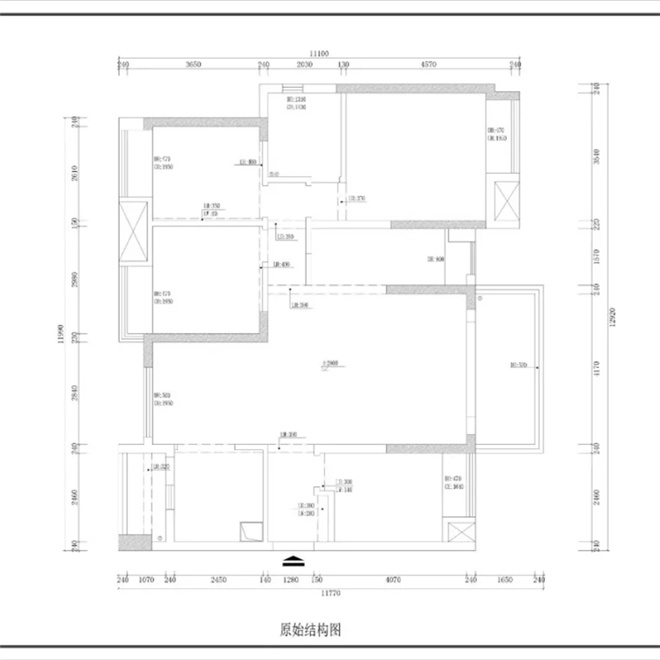
擴大廚房空間,有效解決因為家庭人口偏多帶來的做飯壓力。同時廚房靠南面墻體北移,留出空間設置一整面組合鞋柜。
主臥一個衣柜很難滿足儲納需求,同時本案業主提出增加儲納柜來緩解家庭的儲物壓力。因此將兩個洗手間的使用性質進行調整(主衛變公衛,公衛變主衛)。針對原公衛過于狹長的的不足,縮短該空間長度。同時增設一個衣帽間,很好的解決了本案業主對衣柜的需求。
過道處設置組合儲物柜,在滿足過道的標準尺寸的同時增加儲物功能。
.jpg)
恩施土家族苗族自治州南濱花園三居歐式風格裝修效果圖
.jpg)
恩施土家族苗族自治州南濱花園三居歐式風格裝修效果圖
.jpg)
恩施土家族苗族自治州南濱花園三居歐式風格裝修效果圖
.jpg)
恩施土家族苗族自治州南濱花園三居歐式風格裝修效果圖
.jpg)
恩施土家族苗族自治州南濱花園三居歐式風格裝修效果圖
.jpg)
恩施土家族苗族自治州南濱花園三居歐式風格裝修效果圖
.jpg)
恩施土家族苗族自治州南濱花園三居歐式風格裝修效果圖

恩施土家族苗族自治州南濱花園三居歐式風格裝修效果圖
柳州101-200平米歐式風格東方名都家裝設計案例
歐式風格101-200平米五居室
惠州101-200平米歐式風格利和豪庭家裝設計案例
歐式風格101-200平米四居室
廣州301平米以上歐式風格世紀豪園家裝設計案例
歐式風格301平米以上別墅
廣州101-200平米歐式風格寶峰春天室內裝修設計案例
歐式風格101-200平米四居室
景德鎮101-200平米歐式風格嘉禾室內裝修設計案例
歐式風格101-200平米三居室
嘉興201-300平米歐式風格盛世香堡裝修設計效果圖
歐式風格201-300平米別墅
廣州101-200平米歐式風格裝修設計案例
歐式風格101-200平米三居室
佛山100平米以下歐式風格順景花園家裝設計案例
歐式風格100平米以下三居室